Beschrijving
Een ruime en goed onderhouden woning in het hart van Gendt! Deze charmante woning biedt 107 m² aan woonoppervlak en beschikt over een lichte woonkamer, grote keuken, drie slaapkamers, goed sanitair, twee balkons en een heerlijke achter- en zijtuin met veel privacy. Het huis is nog uitstekend naar eigen wens te moderniseren, zodat je er echt jouw thuis van kunt maken. Parkeren? Dat kan gewoon op eigen terrein!
Dankzij de ligging in het centrum vind je veel voorzieningen om de hoek. Winkels, horeca, scholen, sportclubs en openbaar vervoer liggen allemaal vlakbij.
Zie jij jezelf hier al wonen? Plan dan snel een bezichtiging in!
Over de ligging en de buurt:
Deze charmante eengezinswoning (1969) ligt in hartje Gendt. Dankzij de centrale ligging vind je het gezellige centrum met winkels en horecagelegenheden om de hoek. Met speeltuintjes, een basisschool en een kinderopvang op loopafstand, is dit ook een ideale plek voor een (jong) gezin.
Voor ontspanning en recreatie ligt natuurgebied De Gendtse Waard op korte fietsafstand. Ook andere belangrijke voorzieningen, zoals sportclubs, de huisarts, apotheek en bushaltes, bevinden zich in de directe omgeving. Qua bereikbaarheid woon je ook ideaal. Dankzij de ligging nabij diverse uitvalswegen ben je met de auto in ongeveer 20 minuten in Arnhem of Nijmegen.
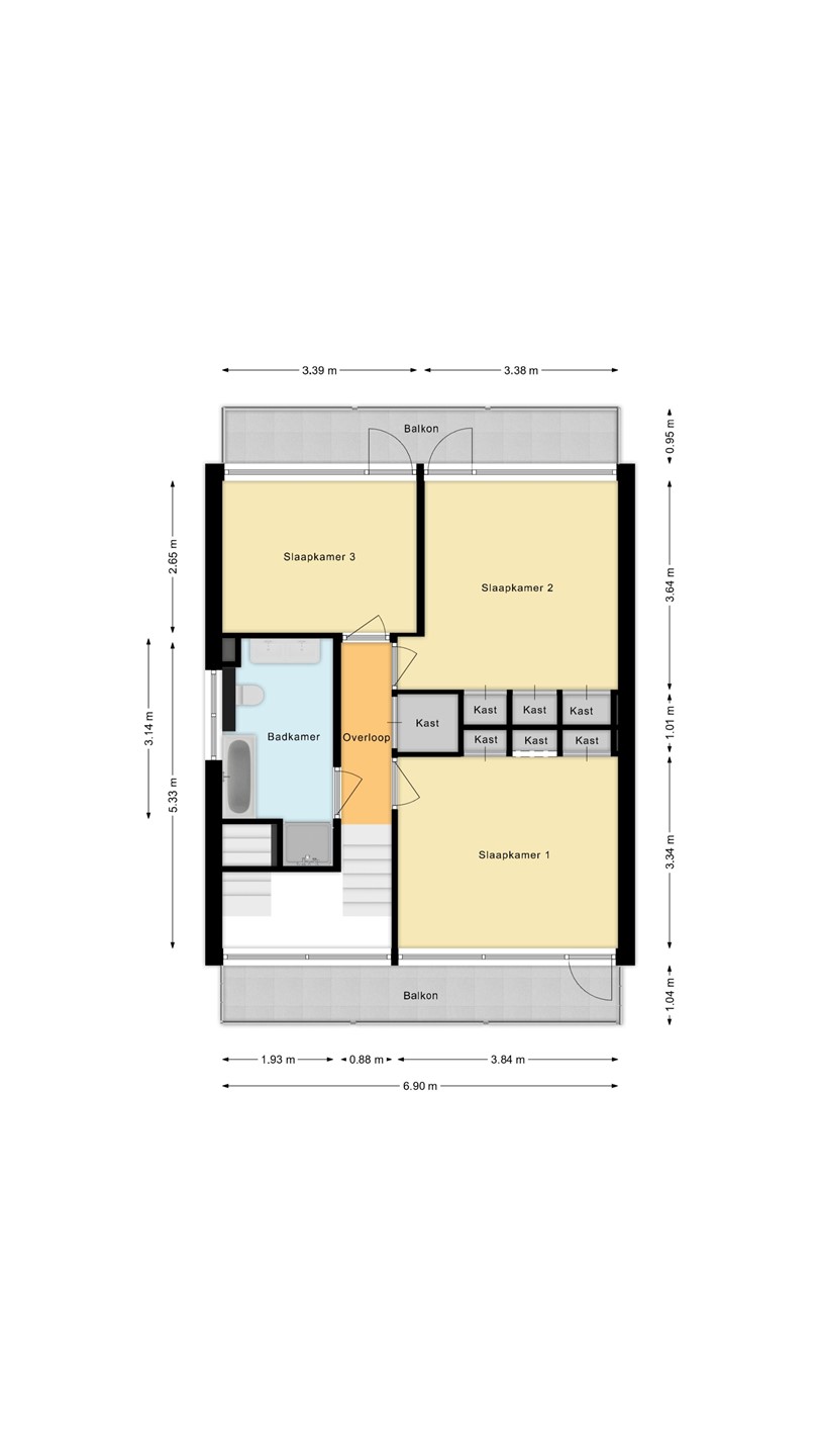
Indeling
Begane grond:
Via de oprit bereik je de berging/garage en de voordeur van deze woning. Na binnenkomst word je verwelkomd door een ruime entreehal met de meterkast, een toiletruimte met zwevend toilet, de trap naar de eerste verdieping en toegang tot de kelderkast, keuken en de woonkamer.
In de ruime doorzonwoonkamer ligt een tegelvloer en zijn de wanden in rustige kleuren afgewerkt. Het balkenplafond en de openhaard zijn bewaard gebleven en geven de ruimte extra sfeer. Aan zowel de voor- als achterzijde heeft de woonkamer een brede raampartij, waardoor er veel natuurlijk licht binnen valt.
De ruim opgezette keuken bevindt zich aan de achterzijde van het huis. Het geheel is uitgevoerd met bruine, houtkleurige keukenkastjes en zwarte werkbladen. De keuken is uitgerust met de volgende apparatuur: vaatwasser, magnetron, inductiefornuis en koelkast. Er is veel kastruimte aanwezig, waaronder diverse lades.
Eerste verdieping
Op deze verdieping vind je drie slaapkamers en de badkamer. Twee van de drie slaapkamers liggen aan de achterzijde en één aan de voorzijde. Alle slaapkamers beschikken over een nette laminaatvloer en keurig afgewerkte muren. Daarnaast zijn twee slaapkamers uitgerust met praktische kastruimte. Alle kamers zijn voorzien van een groot raam, waardoor de lichtinval prettig is. Aan zowel de voor- als achterzijde bevindt zich een breed balkon. Hier is voldoende ruimte om klein meubilair te plaatsen.
De ruime badkamer is afgewerkt met witte wand- en vloertegels met blauwe details. Hier tref je een zwevend toilet, badmeubel met dubbele wastafel, ligbad en een douchecabine aan. De ruimte wordt verlicht met inbouwspots.
Tuin
Het huis beschikt over een ruime achter- en zijtuin. Deze zijn overwegend betegeld en bieden genoeg ruimte voor gezellige zithoekjes. Er is altijd wel een plekje in de zon te vinden! Door de beschutte ligging profiteer je daarnaast van veel privacy.
Via de achtertuin heb je toegang tot de royale berging/garage. Hier bevinden zich de aansluitingen voor de wasmachine en droger. Verder is er genoeg ruimte om spullen op te bergen en fietsen te stallen. De garage is voorzien van een carport waar je onder kunt parkeren.
Bijzonderheden
Kenmerken van de woning:
• Goed onderhouden woning met fijne achter- en zijtuin
• Ruime doorzonwoonkamer met openhaard
• Grote keuken met inbouwapparatuur
• Drie ruime slaapkamers
• Goed sanitair
• Twee balkons
• Nog goed naar eigen smaak te moderniseren
• Parkeermogelijkheden op eigen perceel
• Gunstig ligging in het centrum
• Nabij winkels en openbaar vervoer
• Uitvalswegen vlot bereikbaar
• Energielabel: D.